Kings Road
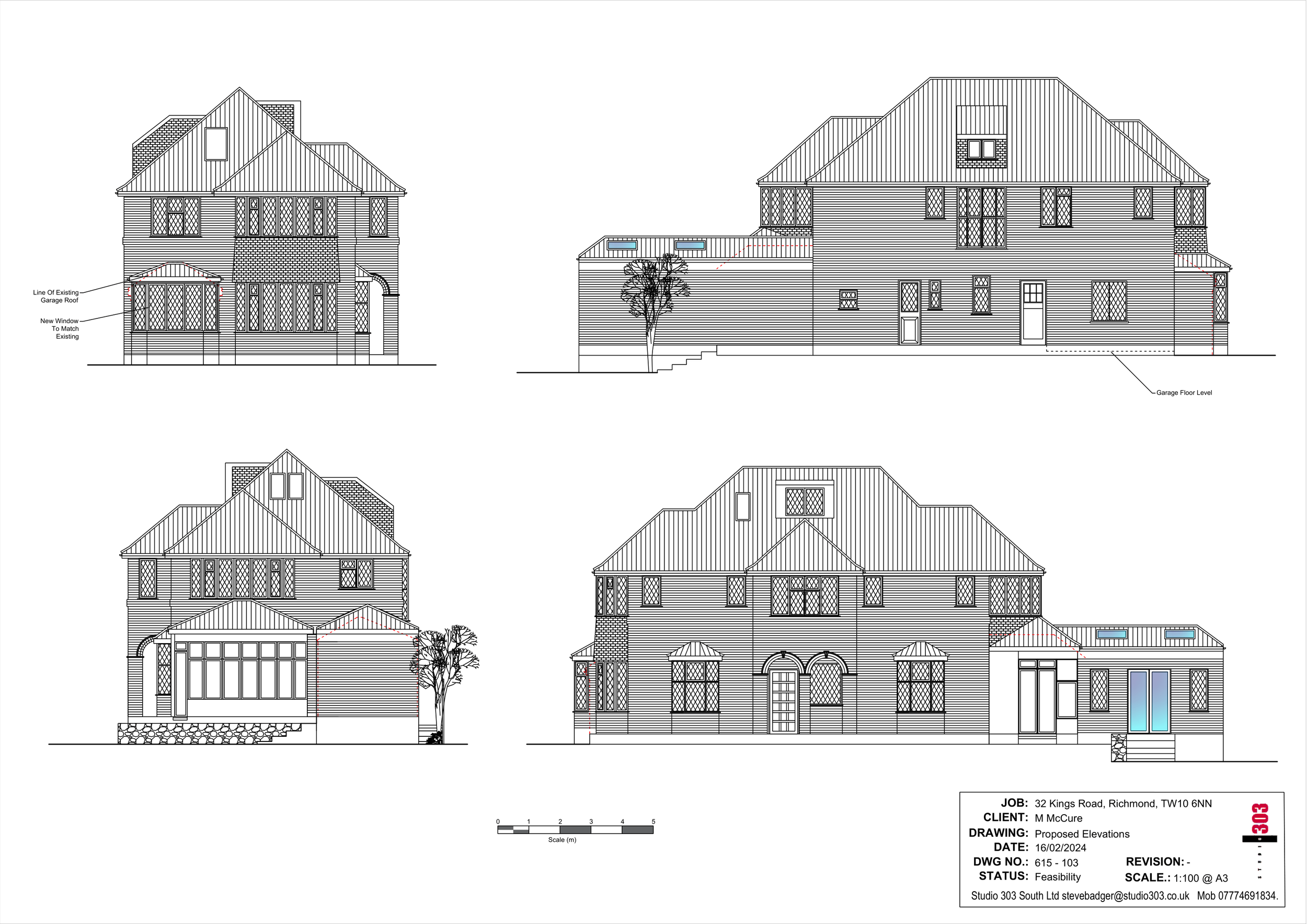
For this project the client wanted to remove the conservatory at the rear of the house due to being uncomfortable for a large period of the summer and winter seasons.
It was replaced with an extension sympathetic to the existing house and comfortable in all seasons. The project also included a garage converted into a new dinning area.
Front View Existing
Rear View existing
Proposed Elevations Showing New Extension and Garage
Proposed Drawings Ground Floor
Garage Conversion Exterior
Garage Conversion Interior
Garage Conversion Interior
Rear Extension Exterior
Rear Extension Fireplace
Rear Extension From Existing Kitchen
Rear Extension Interior

